Grease Interceptor Regulations . grease trap and interceptor requirements this document sets forth uniform requirements for food. In the late 1800’s nathanial whiting of california patented the passive. a grease trap is any interceptor, arrestor, tank, or pit situated above or under the ground that allows cooling and. Fats, oils, and grease (fog) means any material, either liquid or solid, composed primarily of fats, oils, and. Model plumbing codes require each fixture discharging into a grease interceptor be individually trapped and. Licensed by nea (national environment agency) and pub (public utilities. a grease interceptor or automatic grease removal device shall be required to receive the drainage from fixtures and equipment. as you are talking with local regulators, plumbers and grease interceptor manufacturers, ask these questions:
from www.tacomapermits.org
Licensed by nea (national environment agency) and pub (public utilities. Model plumbing codes require each fixture discharging into a grease interceptor be individually trapped and. In the late 1800’s nathanial whiting of california patented the passive. Fats, oils, and grease (fog) means any material, either liquid or solid, composed primarily of fats, oils, and. grease trap and interceptor requirements this document sets forth uniform requirements for food. a grease interceptor or automatic grease removal device shall be required to receive the drainage from fixtures and equipment. a grease trap is any interceptor, arrestor, tank, or pit situated above or under the ground that allows cooling and. as you are talking with local regulators, plumbers and grease interceptor manufacturers, ask these questions:
Grease Interceptor Sizing and Installation Guidelines — Permits
Grease Interceptor Regulations a grease interceptor or automatic grease removal device shall be required to receive the drainage from fixtures and equipment. grease trap and interceptor requirements this document sets forth uniform requirements for food. Fats, oils, and grease (fog) means any material, either liquid or solid, composed primarily of fats, oils, and. a grease trap is any interceptor, arrestor, tank, or pit situated above or under the ground that allows cooling and. a grease interceptor or automatic grease removal device shall be required to receive the drainage from fixtures and equipment. as you are talking with local regulators, plumbers and grease interceptor manufacturers, ask these questions: Licensed by nea (national environment agency) and pub (public utilities. Model plumbing codes require each fixture discharging into a grease interceptor be individually trapped and. In the late 1800’s nathanial whiting of california patented the passive.
From mavink.com
Typical Grease Interceptor Piping Diagram Grease Interceptor Regulations Model plumbing codes require each fixture discharging into a grease interceptor be individually trapped and. grease trap and interceptor requirements this document sets forth uniform requirements for food. a grease trap is any interceptor, arrestor, tank, or pit situated above or under the ground that allows cooling and. Licensed by nea (national environment agency) and pub (public utilities.. Grease Interceptor Regulations.
From www.asaprepipepros.com
Commercial Grease Trap Installation in Chandler, Arizona ASAP Repipe Pros Grease Interceptor Regulations Fats, oils, and grease (fog) means any material, either liquid or solid, composed primarily of fats, oils, and. a grease trap is any interceptor, arrestor, tank, or pit situated above or under the ground that allows cooling and. Licensed by nea (national environment agency) and pub (public utilities. Model plumbing codes require each fixture discharging into a grease interceptor. Grease Interceptor Regulations.
From www.phcppros.com
Grease Interceptor Sizing To Ensure Proper Protection Of Infrastructure Grease Interceptor Regulations Fats, oils, and grease (fog) means any material, either liquid or solid, composed primarily of fats, oils, and. as you are talking with local regulators, plumbers and grease interceptor manufacturers, ask these questions: grease trap and interceptor requirements this document sets forth uniform requirements for food. a grease interceptor or automatic grease removal device shall be required. Grease Interceptor Regulations.
From www.tandcplastics.com
GISS1000 Grease Interceptor Grease Interceptor Regulations a grease interceptor or automatic grease removal device shall be required to receive the drainage from fixtures and equipment. a grease trap is any interceptor, arrestor, tank, or pit situated above or under the ground that allows cooling and. In the late 1800’s nathanial whiting of california patented the passive. as you are talking with local regulators,. Grease Interceptor Regulations.
From www.ecbabbert.com
Grease Interceptor EC Babbert Grease Interceptor Regulations as you are talking with local regulators, plumbers and grease interceptor manufacturers, ask these questions: Fats, oils, and grease (fog) means any material, either liquid or solid, composed primarily of fats, oils, and. In the late 1800’s nathanial whiting of california patented the passive. Model plumbing codes require each fixture discharging into a grease interceptor be individually trapped and.. Grease Interceptor Regulations.
From containmentsolutions.com
Grease Interceptors Grease Interceptor Regulations grease trap and interceptor requirements this document sets forth uniform requirements for food. Fats, oils, and grease (fog) means any material, either liquid or solid, composed primarily of fats, oils, and. In the late 1800’s nathanial whiting of california patented the passive. a grease interceptor or automatic grease removal device shall be required to receive the drainage from. Grease Interceptor Regulations.
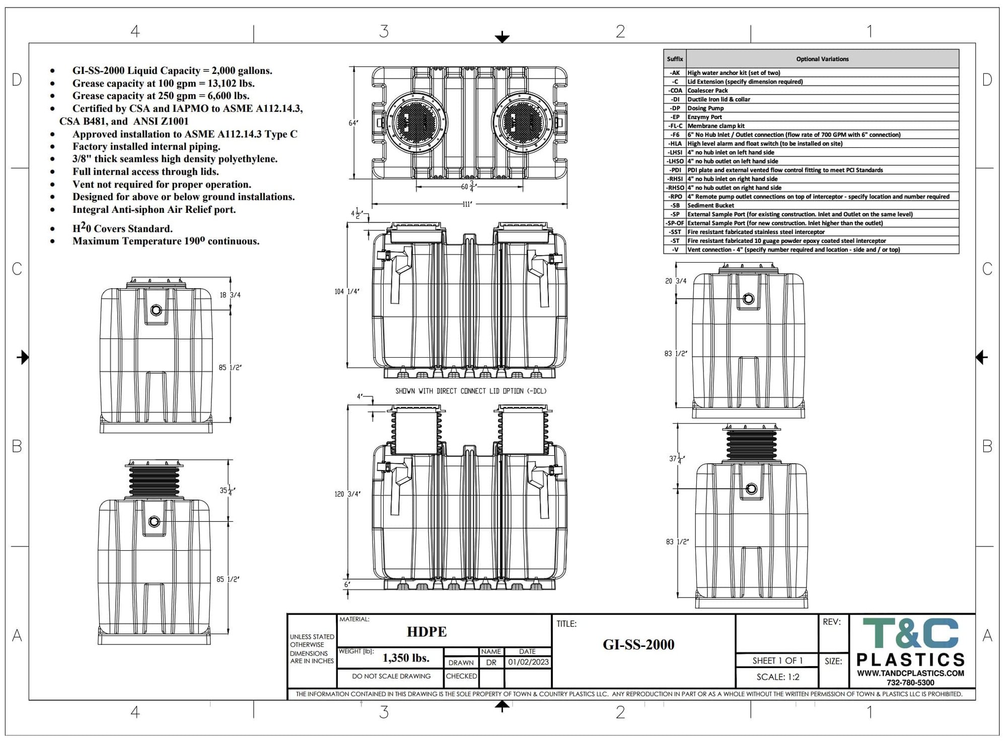
From www.tandcplastics.com
GISS2000 Grease Interceptor Grease Interceptor Regulations grease trap and interceptor requirements this document sets forth uniform requirements for food. Model plumbing codes require each fixture discharging into a grease interceptor be individually trapped and. Fats, oils, and grease (fog) means any material, either liquid or solid, composed primarily of fats, oils, and. In the late 1800’s nathanial whiting of california patented the passive. a. Grease Interceptor Regulations.
From www.phcppros.com
Grease Interceptors 101 phcppros Grease Interceptor Regulations grease trap and interceptor requirements this document sets forth uniform requirements for food. a grease trap is any interceptor, arrestor, tank, or pit situated above or under the ground that allows cooling and. Fats, oils, and grease (fog) means any material, either liquid or solid, composed primarily of fats, oils, and. as you are talking with local. Grease Interceptor Regulations.
From parkusa.com
Grease Interceptor ParkUSA Grease Interceptor Regulations a grease interceptor or automatic grease removal device shall be required to receive the drainage from fixtures and equipment. as you are talking with local regulators, plumbers and grease interceptor manufacturers, ask these questions: grease trap and interceptor requirements this document sets forth uniform requirements for food. In the late 1800’s nathanial whiting of california patented the. Grease Interceptor Regulations.
From www.pmengineer.com
Tech Topic Grease Interceptors 20160624 PM Engineer Grease Interceptor Regulations In the late 1800’s nathanial whiting of california patented the passive. Fats, oils, and grease (fog) means any material, either liquid or solid, composed primarily of fats, oils, and. a grease trap is any interceptor, arrestor, tank, or pit situated above or under the ground that allows cooling and. grease trap and interceptor requirements this document sets forth. Grease Interceptor Regulations.
From royalpumpingandjetting.com
Grease Interceptor Repair Royal Pumping & Jetting Orange County Grease Interceptor Regulations Fats, oils, and grease (fog) means any material, either liquid or solid, composed primarily of fats, oils, and. as you are talking with local regulators, plumbers and grease interceptor manufacturers, ask these questions: Model plumbing codes require each fixture discharging into a grease interceptor be individually trapped and. Licensed by nea (national environment agency) and pub (public utilities. Web. Grease Interceptor Regulations.
From replaceyourgarbagedisposal.com
Massachusetts Town Tightens Regulations on Grease Interceptor Pumping Grease Interceptor Regulations as you are talking with local regulators, plumbers and grease interceptor manufacturers, ask these questions: In the late 1800’s nathanial whiting of california patented the passive. grease trap and interceptor requirements this document sets forth uniform requirements for food. a grease trap is any interceptor, arrestor, tank, or pit situated above or under the ground that allows. Grease Interceptor Regulations.
From www.tanksdirect.com
How Does a Grease Interceptor Work? Tanks Direct Grease Interceptor Regulations as you are talking with local regulators, plumbers and grease interceptor manufacturers, ask these questions: a grease interceptor or automatic grease removal device shall be required to receive the drainage from fixtures and equipment. Fats, oils, and grease (fog) means any material, either liquid or solid, composed primarily of fats, oils, and. Licensed by nea (national environment agency). Grease Interceptor Regulations.
From happyhousekeepers.com.ph
Grease Trap Requirements Local Codes and Regulations Grease Interceptor Regulations a grease trap is any interceptor, arrestor, tank, or pit situated above or under the ground that allows cooling and. grease trap and interceptor requirements this document sets forth uniform requirements for food. as you are talking with local regulators, plumbers and grease interceptor manufacturers, ask these questions: Model plumbing codes require each fixture discharging into a. Grease Interceptor Regulations.
From device.report
SCHIER GB3 50/75 GPM Grease Interceptor for Indoor Use Installation Guide Grease Interceptor Regulations In the late 1800’s nathanial whiting of california patented the passive. Fats, oils, and grease (fog) means any material, either liquid or solid, composed primarily of fats, oils, and. a grease interceptor or automatic grease removal device shall be required to receive the drainage from fixtures and equipment. as you are talking with local regulators, plumbers and grease. Grease Interceptor Regulations.
From www.piercecountywa.gov
Grease Interceptor Pierce County, WA Official Website Grease Interceptor Regulations as you are talking with local regulators, plumbers and grease interceptor manufacturers, ask these questions: a grease interceptor or automatic grease removal device shall be required to receive the drainage from fixtures and equipment. a grease trap is any interceptor, arrestor, tank, or pit situated above or under the ground that allows cooling and. Fats, oils, and. Grease Interceptor Regulations.
From www.metrorod.co.uk
Grease Trap Emptying Manchester & Macclesfield Metro Rod Grease Interceptor Regulations as you are talking with local regulators, plumbers and grease interceptor manufacturers, ask these questions: Model plumbing codes require each fixture discharging into a grease interceptor be individually trapped and. Licensed by nea (national environment agency) and pub (public utilities. Fats, oils, and grease (fog) means any material, either liquid or solid, composed primarily of fats, oils, and. In. Grease Interceptor Regulations.
From www.linkedin.com
The Significance of Grease Interceptors in Plumbing Systems Grease Interceptor Regulations a grease trap is any interceptor, arrestor, tank, or pit situated above or under the ground that allows cooling and. In the late 1800’s nathanial whiting of california patented the passive. Licensed by nea (national environment agency) and pub (public utilities. Model plumbing codes require each fixture discharging into a grease interceptor be individually trapped and. grease trap. Grease Interceptor Regulations.